Stêdsfinne 37

Workum

verkocht onder voorbehoud

€ 269.500,- k.k.

Omschrijving

Mooie starterswoning!
Deze gemoderniseerde tussenwoning is gelegen in een rustige woonwijk op korte afstand van alle voorzieningen van Workum. De woning heeft een moderne keuken, een aangebouwde bijkeuken en beschikt over 4 slaapkamers. Tot de woning behoort een onderhoudsvriendelijke achtertuin op het noordwesten, voorzien van een schuur en achterom. Het geheel is gelegen op een perceel eigen grond van 114 m².

De watersportstad Workum kenmerkt zich door zijn gastvrijheid, vele stadsactiviteiten en voorzieningen. Door de ligging aan het IJsselmeer en de goede bereikbaarheid is er veel toerisme en werkgelegenheid. In het oude stadscentrum bevinden zich veel monumentale panden, historische geveltjes en gezellige terrassen.

Indeling
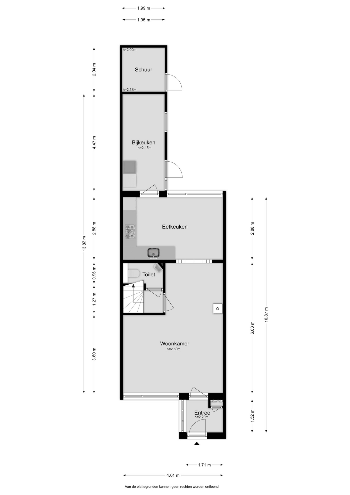
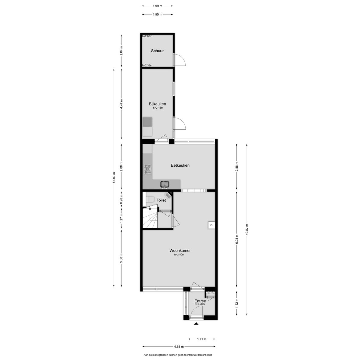
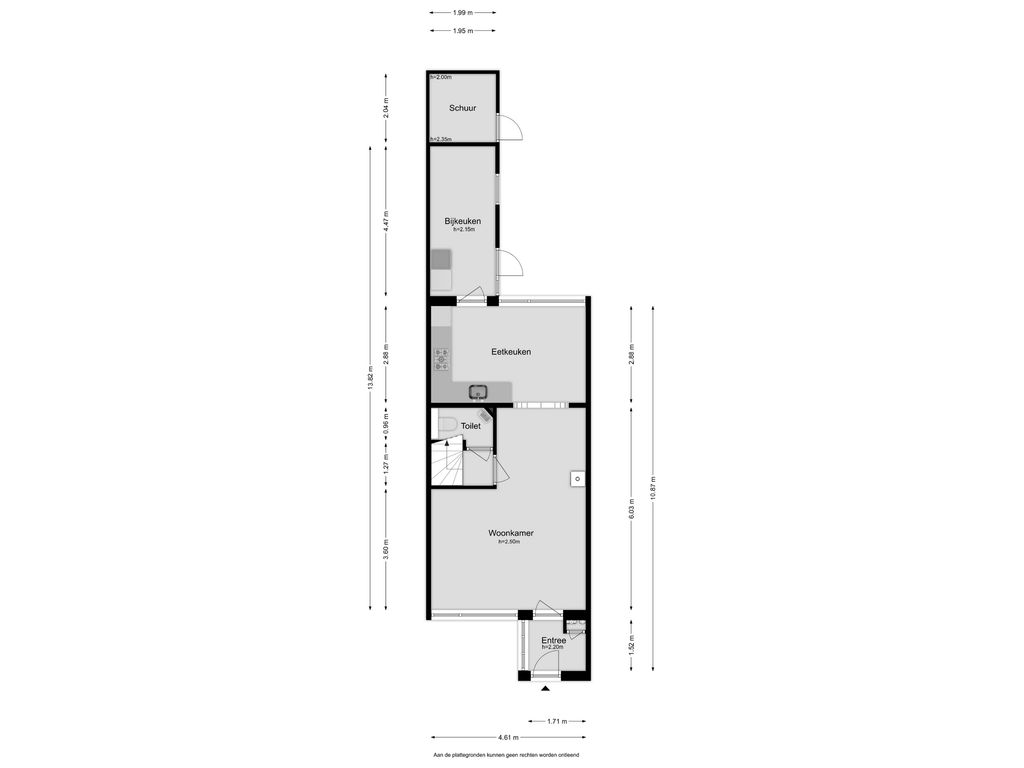
Entree, hal en meterkast. De ruime woonkamer beschikt over een rookkanaal en heeft veel lichtinval door de grote ramen. Tussen de woonkamer en de keuken bevindt zich een tussenhal, hier bevinden zich het toilet en de trapopgang naar de eerste verdieping. De open keuken is voorzien van een modern keukenblok in hoekopstelling en is voorzien van diverse inbouwapparatuur. Vanuit de keuken is er toegang tot de bijkeuken met witgoedaansluitingen en een deur naar de tuin. De beschutte achtertuin is betegeld en voorzien van een bergschuur. Er is een eigen achterom via de achtergelegen steeg. De ligging is op het noordwesten.

Eerste verdieping
Vanaf de centrale overloop is er toegang naar de 3 ruime slaapkamers en de badkamer. De badkamer is voorzien van een ligbad, douche en wastafelmeubel.

Tweede verdieping
De 2e verdieping is bereikbaar middels een vaste trap. Hier bevinden zich een overloop met bergruimte achter de knieschotten en de cv-opstelling. Tevens bevindt zich hier de 4e slaapkamer. Deze kamer is voorzien van een dakraam.

Tuin
De voortuin met terras en verhoogde borderbakken is op het zuidoosten gelegen. De onderhoudsvriendelijke achtertuin heeft een ligging op het noordwesten en is voorzien van een bergschuur en een achterom via de achtergelegen steeg.

Bijzonderheden
* Energielabel D;
* Vloerverwarming in de kamer en de keuken;
* Grotendeels kunststof kozijnen;
* 4 Slaapkamers;
* Intergas CV-ketel 2024;
* Vaste trap naar 2e verdieping;
* Achtertuin met achterom;
* Voldoende parkeerruimte voor de deur;
* Rustige woonlocatie op korte afstand van de stadsvoorzieningen van Workum;
* Bezichtiging uitsluitend via de makelaar.
+ Lees de volledige omschrijving

Kenmerken

Overdracht

Vraagprijs € 269.500,- k.k.
Status verkocht onder voorbehoud
Aanvaarding in overleg

Bouw

Soort woning woonhuis
Soort woonhuis eengezinswoning
Type woonhuis tussenwoning
Aantal woonlagen 3
Kwaliteit normaal
Bouwvorm bestaande bouw
Bouwperiode 1960-1970
Dak dwarskap

Energie

Energielabel D
Verwarming vloerverwarming gedeeltelijk
Warm water c.v.-ketel
C.V.-ketel gas gestookte combi-ketel uit 2024 van Intergas, eigendom

Oppervlakten en inhoud

Woonoppervlakte 114 m²
Perceeloppervlakte 114 m²
Inhoud 393 m³

Indeling

Aantal kamers 5
Aantal slaapkamers 4

Buitenruimte

Tuin Achtertuin met een oppervlakte van 13 m² en is gelegen op het noordwesten

Foto's

Stêdsfinne 37, Workum
Stêdsfinne 37, Workum
Stêdsfinne 37, Workum
Stêdsfinne 37, Workum
Stêdsfinne 37, Workum
Stêdsfinne 37, Workum
Stêdsfinne 37, Workum
Stêdsfinne 37, Workum
Stêdsfinne 37, Workum
Stêdsfinne 37, Workum
Stêdsfinne 37, Workum
Stêdsfinne 37, Workum
Stêdsfinne 37, Workum
Stêdsfinne 37, Workum
Stêdsfinne 37, Workum
Stêdsfinne 37, Workum
Stêdsfinne 37, Workum
Stêdsfinne 37, Workum
Stêdsfinne 37, Workum
Stêdsfinne 37, Workum
Stêdsfinne 37, Workum
Stêdsfinne 37, Workum
Stêdsfinne 37, Workum
Stêdsfinne 37, Workum
Stêdsfinne 37, Workum
Stêdsfinne 37, Workum
Stêdsfinne 37, Workum
Stêdsfinne 37, Workum
Stêdsfinne 37, Workum
Stêdsfinne 37, Workum
Stêdsfinne 37, Workum

Plattegronden

Locatie

Contact opnemen

×
Stêdsfinne 37, Workum
Stêdsfinne 37, Workum
Stêdsfinne 37, Workum
Stêdsfinne 37, Workum
Stêdsfinne 37, Workum
Stêdsfinne 37, Workum
Stêdsfinne 37, Workum
Stêdsfinne 37, Workum
Stêdsfinne 37, Workum
Stêdsfinne 37, Workum
Stêdsfinne 37, Workum
Stêdsfinne 37, Workum
Stêdsfinne 37, Workum
Stêdsfinne 37, Workum
Stêdsfinne 37, Workum
Stêdsfinne 37, Workum
Stêdsfinne 37, Workum
Stêdsfinne 37, Workum
Stêdsfinne 37, Workum
Stêdsfinne 37, Workum
Stêdsfinne 37, Workum
Stêdsfinne 37, Workum
Stêdsfinne 37, Workum
Stêdsfinne 37, Workum
Stêdsfinne 37, Workum
Stêdsfinne 37, Workum
Stêdsfinne 37, Workum
Stêdsfinne 37, Workum
Stêdsfinne 37, Workum
Stêdsfinne 37, Workum
Stêdsfinne 37, Workum
×
Stêdsfinne 37, Workum
Stêdsfinne 37, Workum
Stêdsfinne 37, Workum