Stadsstreng 8

Bolsward

verkocht onder voorbehoud

€ 335.000,- k.k.

Omschrijving

Op een mooie woonlocatie aan de stadsgracht van Bolsward staat deze ruime gezinswoning. Deze tussenwoning beschikt over 4 slaapkamers en een aangebouwde bijkeuken. Vanuit de woonkamer heeft u een prachtig uitzicht over de stadsgracht. De achtertuin met achterom is voorzien van een houten schuur met terrasoverkapping. De woning staat op een perceel eigen grond van 156 m².

De vriendelijke stad Bolsward heeft een uitstekende ligging aan de A7. De diverse stadsvoorzieningen en de vele sportvoorzieningen zijn op loopafstand van deze woning.


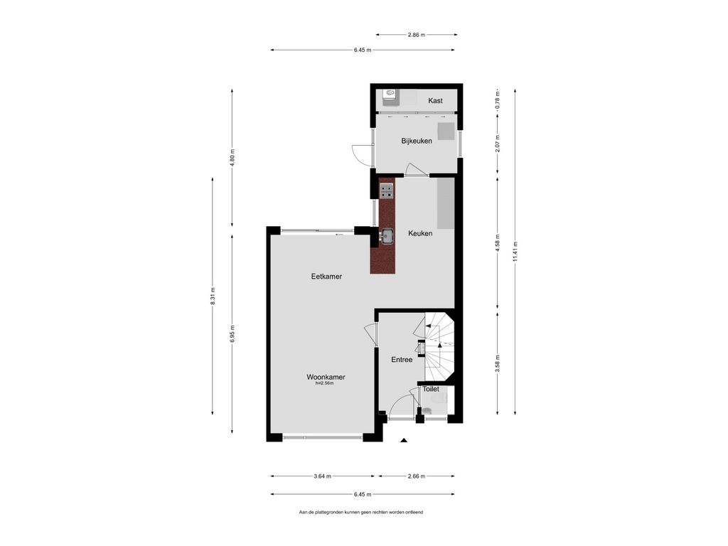
Indeling
Entree, hal, meterkast, toilet, trapopgang en trapkast. De doorzonkamer is uitgevoerd in lichte kleurstellingen en heeft veel lichtinval door de raampartij aan de voorzijde en de grote schuifpui aan de achterzijde. De halfopen keuken is voorzien van inbouwapparatuur en een stenen werkblad. Vanuit de keuken is er een toegangsdeur naar de aangebouwde bijkeuken met kastenwand. Hier bevinden zich de witgoedaansluitingen en de cv-opstelling. Middels de achterdeur in de bijkeuken heeft u toegang tot de achtertuin. De onderhoudsvriendelijke achtertuin heeft een houten bergschuur met een overkapping en een achterom via de achter gelegen steeg.

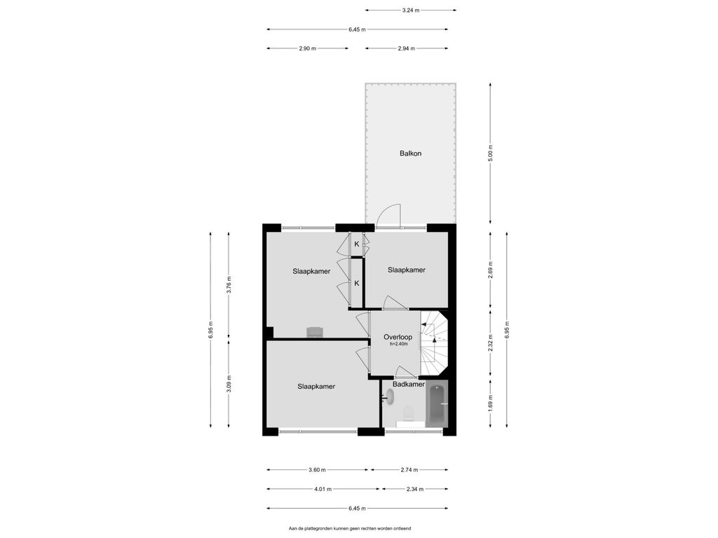
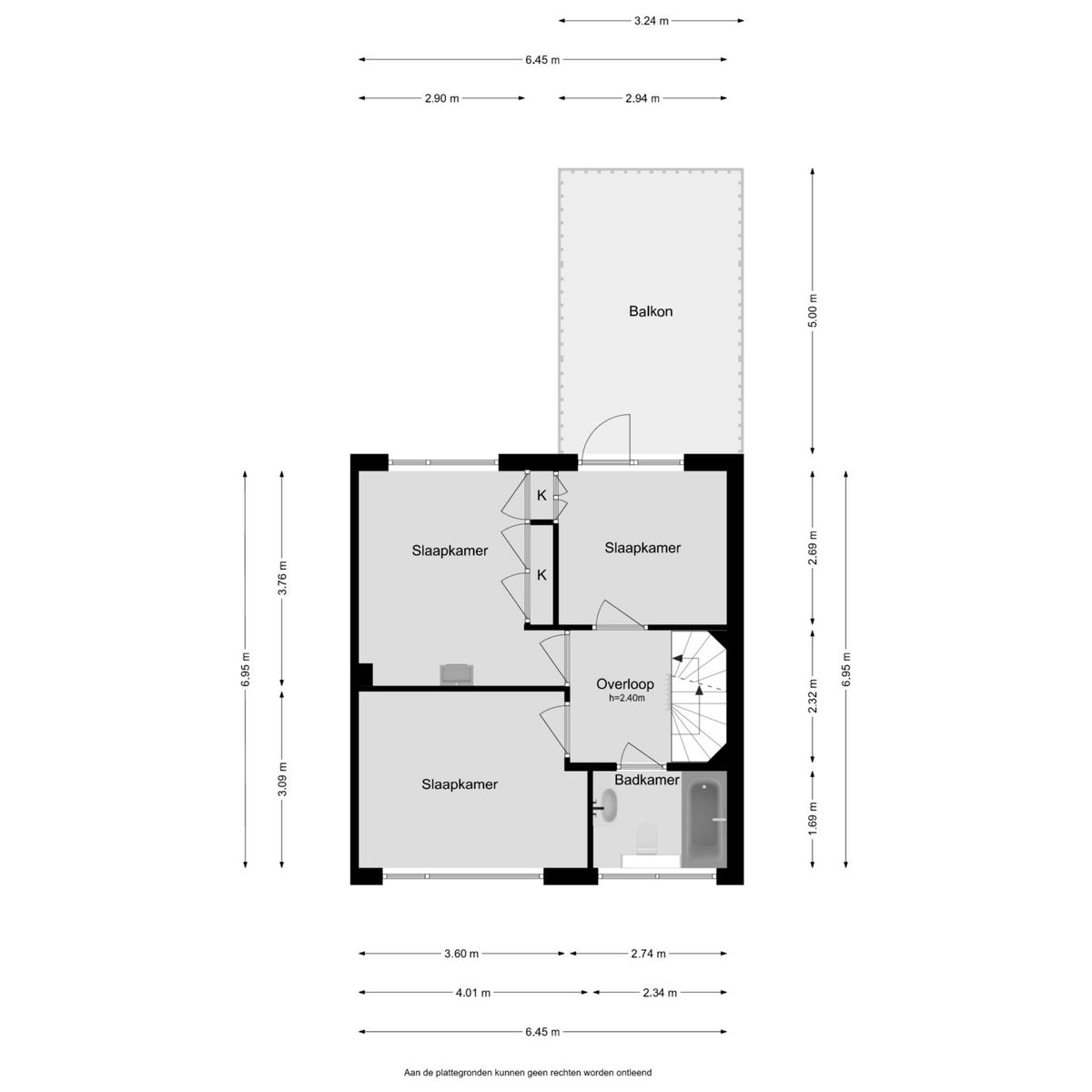
Eerste verdieping
De eerste verdieping beschikt over een centrale overloop, een badkamer en 3 slaapkamers. De ouderslaapkamer is voorzien van inbouwkasten. Via de slaapkamer aan de achterzijde is het balkon bereikbaar. De badkamer is voorzien van een ligbad, 2e toilet en een wastafelmeubel. Door de recht opgetrokken buitengevels hebben alle ruimtes op deze verdieping bruikbare afmetingen.

Tweede verdieping
Ook de tweede verdieping is bereikbaar via een vaste trap. De overloop biedt doormiddel van de knieschotten voldoende opbergruimte. De ruime 4e slaapkamer is voorzien van een groot dakraam.

Tuin
De onderhoudsvriendelijke achtertuin met achterom is op het noordwesten gelegen en voorzien van sierbestrating. De houten bergschuur kunt u gebruiken voor opslag of voor het stallen van uw fiets.
De voortuin heeft een zonligging op het zuidoosten en is voorzien van bestrating en groene beplanting.

Bijzonderheden
* Energielabel B;
* 8 zonnepanelen 2024;
* 4 Slaapkamers;
* Nefit ketel 2011;
* Vaste trap naar 2e verdieping;
* Achtertuin met achterom;
* Rustige woonlocatie met uitzicht op de stadsgracht;
* Gelegen op loopafstand van de supermarkten en scholen;
* Dankzij de A7 zijn de Randstad en Groningen in ± één uur te bereiken;
* Bezichtiging uitsluitend via de makelaar.
+ Lees de volledige omschrijving

Kenmerken

Overdracht

Vraagprijs € 335.000,- k.k.
Status verkocht onder voorbehoud
Aanvaarding in overleg

Bouw

Soort woning woonhuis
Soort woonhuis eengezinswoning
Type woonhuis tussenwoning
Aantal woonlagen 3
Kwaliteit normaal
Bouwvorm bestaande bouw
Bouwperiode 1960-1970
Dak dwarskap
Voorzieningen zonnecollectoren

Energie

Energielabel B
Verwarming c.v.-ketel en vloerverwarming gedeeltelijk
Warm water c.v.-ketel
C.V.-ketel gas gestookte combi-ketel uit 2011 van Nefit Topline, eigendom

Oppervlakten en inhoud

Woonoppervlakte 119 m²
Perceeloppervlakte 156 m²
Inhoud 433 m³
Buitenruimte oppervlakte 16 m²

Indeling

Aantal kamers 5
Aantal slaapkamers 4

Buitenruimte

Tuin Achtertuin met een oppervlakte van 52 m² en is gelegen op het noordwesten

Bergruimte

Schuur/berging vrijstaand hout

Foto's

Stadsstreng 8, Bolsward
Stadsstreng 8, Bolsward
Stadsstreng 8, Bolsward
Stadsstreng 8, Bolsward
Stadsstreng 8, Bolsward
Stadsstreng 8, Bolsward
Stadsstreng 8, Bolsward
Stadsstreng 8, Bolsward
Stadsstreng 8, Bolsward
Stadsstreng 8, Bolsward
Stadsstreng 8, Bolsward
Stadsstreng 8, Bolsward
Stadsstreng 8, Bolsward
Stadsstreng 8, Bolsward
Stadsstreng 8, Bolsward
Stadsstreng 8, Bolsward
Stadsstreng 8, Bolsward
Stadsstreng 8, Bolsward
Stadsstreng 8, Bolsward
Stadsstreng 8, Bolsward
Stadsstreng 8, Bolsward
Stadsstreng 8, Bolsward
Stadsstreng 8, Bolsward
Stadsstreng 8, Bolsward
Stadsstreng 8, Bolsward
Stadsstreng 8, Bolsward
Stadsstreng 8, Bolsward
Stadsstreng 8, Bolsward
Stadsstreng 8, Bolsward
Stadsstreng 8, Bolsward
Stadsstreng 8, Bolsward
Stadsstreng 8, Bolsward
Stadsstreng 8, Bolsward
Stadsstreng 8, Bolsward
Stadsstreng 8, Bolsward
Stadsstreng 8, Bolsward
Stadsstreng 8, Bolsward
Stadsstreng 8, Bolsward
Stadsstreng 8, Bolsward
Stadsstreng 8, Bolsward
Stadsstreng 8, Bolsward
Stadsstreng 8, Bolsward

Plattegronden

Locatie

Contact opnemen

×
Stadsstreng 8, Bolsward
Stadsstreng 8, Bolsward
Stadsstreng 8, Bolsward
Stadsstreng 8, Bolsward
Stadsstreng 8, Bolsward
Stadsstreng 8, Bolsward
Stadsstreng 8, Bolsward
Stadsstreng 8, Bolsward
Stadsstreng 8, Bolsward
Stadsstreng 8, Bolsward
Stadsstreng 8, Bolsward
Stadsstreng 8, Bolsward
Stadsstreng 8, Bolsward
Stadsstreng 8, Bolsward
Stadsstreng 8, Bolsward
Stadsstreng 8, Bolsward
Stadsstreng 8, Bolsward
Stadsstreng 8, Bolsward
Stadsstreng 8, Bolsward
Stadsstreng 8, Bolsward
Stadsstreng 8, Bolsward
Stadsstreng 8, Bolsward
Stadsstreng 8, Bolsward
Stadsstreng 8, Bolsward
Stadsstreng 8, Bolsward
Stadsstreng 8, Bolsward
Stadsstreng 8, Bolsward
Stadsstreng 8, Bolsward
Stadsstreng 8, Bolsward
Stadsstreng 8, Bolsward
Stadsstreng 8, Bolsward
Stadsstreng 8, Bolsward
Stadsstreng 8, Bolsward
Stadsstreng 8, Bolsward
Stadsstreng 8, Bolsward
Stadsstreng 8, Bolsward
Stadsstreng 8, Bolsward
Stadsstreng 8, Bolsward
Stadsstreng 8, Bolsward
Stadsstreng 8, Bolsward
Stadsstreng 8, Bolsward
Stadsstreng 8, Bolsward
×
Stadsstreng 8, Bolsward
Stadsstreng 8, Bolsward
Stadsstreng 8, Bolsward
Stadsstreng 8, Bolsward