Petronella Moensstrjitte 10

Kubaard

verkocht onder voorbehoud

€ 325.000,- k.k.

Omschrijving

Verscholen achter de voormalige gereformeerde kerk van Kubaard en een hoge groene haag staat deze fijne gezinswoning uit 1840.
De woning beschikt over een ruime woonkamer, een landelijke keuken en 4 slaapkamers, waarvan 1 op de begane grond. De heerlijk beschutte tuin heeft een zonligging op het zuidoosten met aan de voorzijde van de haag parkeerruimte voor meerdere auto's. Het geheel is gelegen op een perceel eigen grond van 460 m².

Kûbaard is een klein dorp met een sportveld, dorpshuis en een actief dorpsleven, waaraan alle bewoners graag een steentje bijdragen. Alle activiteiten en de verschillende verenigingen worden dan ook verzorgd door vrijwilligers.
In het nabijgelegen Wommels (op 2 km afstand) zijn de meeste basisvoorzieningen aanwezig: kinderopvang, basisscholen, huisarts, bibliotheek, openbaar vervoer, garage met tankstation, supermarkt en nog een aantal andere winkels.
Verder heeft Kubaard goede verbindingen met Leeuwarden, Franeker, Bolsward en Sneek. Via de A7 zijn Amsterdam en Groningen in circa 1 uur bereikbaar.

Indeling
Hal, entree, meterkast en toegangsdeuren naar de woonkamer en naar de keuken. De ruime woonkamer heeft een mooi balkenplafond en de grote ramen zorgen voor veel lichtinval. De gesloten keuken aan de andere kant van de hal heeft flinke afmetingen en hier bevindt zich tevens de trapopgang. De royale hoekkeuken is voorzien van inbouwapparatuur en een handig fornuis. Rond de naastgelegen gang zijn de overige ruimtes op de begane grond gesitueerd: toilet, slaapkamer, badkamer en bijkeuken. De slaapkamer krijgt lichtinval via de bovenramen naar de badkamer. De cv-installatie bevindt zich hier in een afsluitbare kast. De badkamer beschikt over een ligbad, een doucheruimte en een wastafelmeubel. De bijkeuken biedt voldoende ruimte voor de witgoedaansluitingen en heeft tevens een deur naar de tuin. De beschutte tuin is aangelegd met terrassen, gazon en een houten bergschuur.

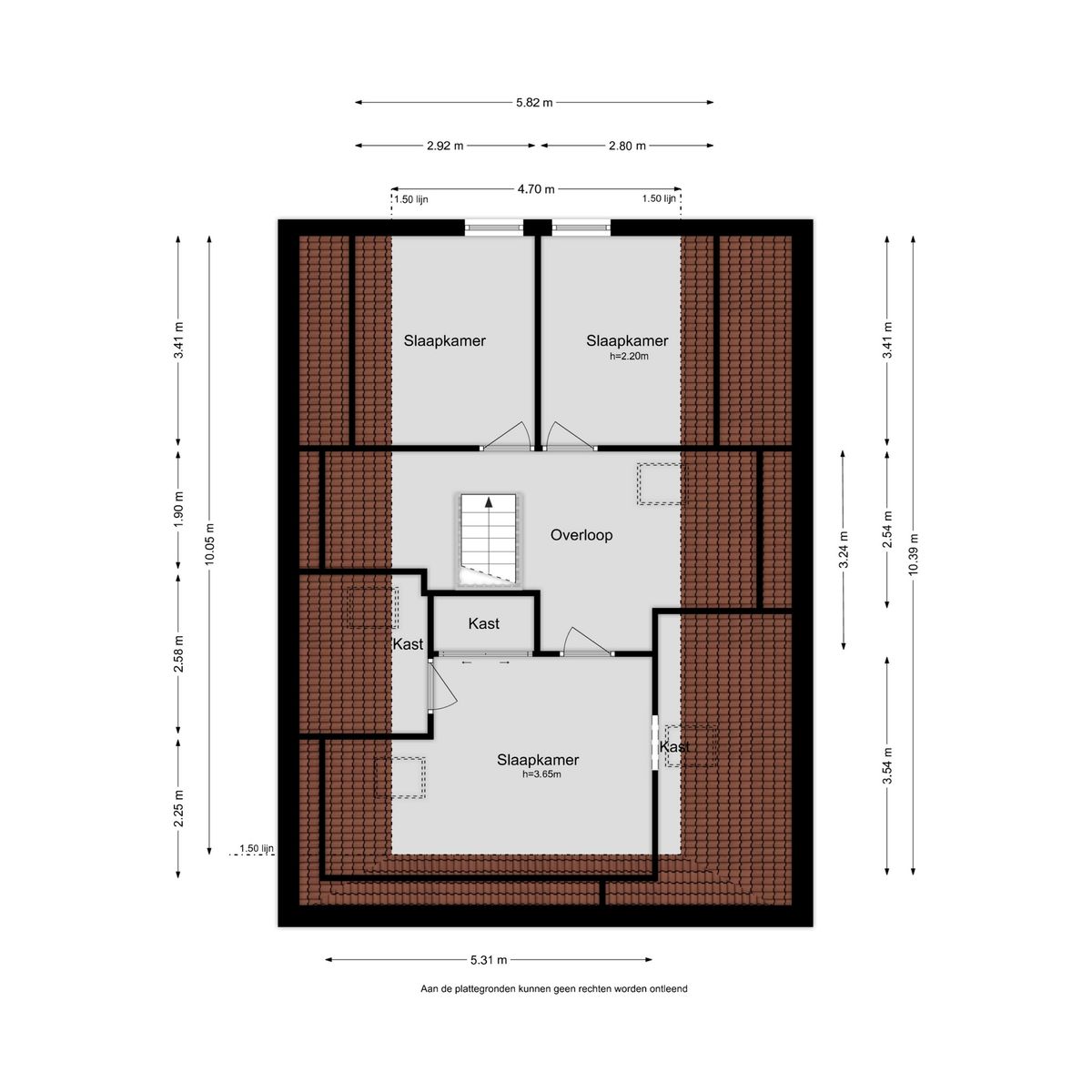
Eerste verdieping
De verdieping beschikt over een grote centrale overloop en 3 slaapkamers. Door de ruime afmetingen van de overloop kan hier prima een bureau staan. In de grote slaapkamer zijn de balken zichtbaar gehouden en is er voldoende licht door de 2 grote dakvensters. De ruimte onder het schuine dak is handig verwerkt tot bergkasten.

Tuin
De grote tuin op het zuidoosten heeft een beschutte ligging en bestaat uit terrassen, gazon en een vrijstaande houten bergschuur. De toegang vanaf de straat is afgeschermd door een groenblijvende laurierhaag met ijzeren toegangshek. Aan de straatzijde van de haag bevindt zich parkeerruimte voor 2 auto's.

Bijzonderheden
* Centrale ligging in het vriendelijk dorp Kubaard;
* Uitstekend geschikt voor tuinliefhebbers;
* Beschutte tuin op het zuidoosten;
* Slaapkamer en badkamer op begane grond;
* 3 Slaapkamers op verdieping;
* Intergas cv-ketel 2013;
* Energielabel F;
* Op 2 km afstand van voorzieningen (scholen, winkels, enz.);
* Centraal gelegen tussen Bolsward, Sneek, Franeker en Leeuwarden.
* Bezichtiging uitsluitend via de makelaar.
+ Lees de volledige omschrijving

Kenmerken

Overdracht

Vraagprijs € 325.000,- k.k.
Status verkocht onder voorbehoud
Aanvaarding in overleg

Bouw

Soort woning woonhuis
Soort woonhuis eengezinswoning
Type woonhuis vrijstaande woning
Aantal woonlagen 2
Kwaliteit normaal
Bouwvorm bestaande bouw
Bouwperiode -1906
Dak dwarskap

Energie

Energielabel F
Verwarming c.v.-ketel
Warm water c.v.-ketel
C.V.-ketel gas gestookte combi-ketel uit 2013 van Intergas, eigendom

Oppervlakten en inhoud

Woonoppervlakte 133 m²
Perceeloppervlakte 460 m²
Inhoud 555 m³

Indeling

Aantal kamers 5
Aantal slaapkamers 4

Bergruimte

Schuur/berging vrijstaand hout

Foto's

Petronella Moensstrjitte 10, Kubaard
Petronella Moensstrjitte 10, Kubaard
Petronella Moensstrjitte 10, Kubaard
Petronella Moensstrjitte 10, Kubaard
Petronella Moensstrjitte 10, Kubaard
Petronella Moensstrjitte 10, Kubaard
Petronella Moensstrjitte 10, Kubaard
Petronella Moensstrjitte 10, Kubaard
Petronella Moensstrjitte 10, Kubaard
Petronella Moensstrjitte 10, Kubaard
Petronella Moensstrjitte 10, Kubaard
Petronella Moensstrjitte 10, Kubaard
Petronella Moensstrjitte 10, Kubaard
Petronella Moensstrjitte 10, Kubaard
Petronella Moensstrjitte 10, Kubaard
Petronella Moensstrjitte 10, Kubaard
Petronella Moensstrjitte 10, Kubaard
Petronella Moensstrjitte 10, Kubaard
Petronella Moensstrjitte 10, Kubaard
Petronella Moensstrjitte 10, Kubaard
Petronella Moensstrjitte 10, Kubaard
Petronella Moensstrjitte 10, Kubaard
Petronella Moensstrjitte 10, Kubaard
Petronella Moensstrjitte 10, Kubaard
Petronella Moensstrjitte 10, Kubaard
Petronella Moensstrjitte 10, Kubaard
Petronella Moensstrjitte 10, Kubaard
Petronella Moensstrjitte 10, Kubaard
Petronella Moensstrjitte 10, Kubaard
Petronella Moensstrjitte 10, Kubaard
Petronella Moensstrjitte 10, Kubaard
Petronella Moensstrjitte 10, Kubaard
Petronella Moensstrjitte 10, Kubaard
Petronella Moensstrjitte 10, Kubaard
Petronella Moensstrjitte 10, Kubaard
Petronella Moensstrjitte 10, Kubaard
Petronella Moensstrjitte 10, Kubaard
Petronella Moensstrjitte 10, Kubaard
Petronella Moensstrjitte 10, Kubaard
Petronella Moensstrjitte 10, Kubaard
Petronella Moensstrjitte 10, Kubaard
Petronella Moensstrjitte 10, Kubaard
Petronella Moensstrjitte 10, Kubaard
Petronella Moensstrjitte 10, Kubaard
Petronella Moensstrjitte 10, Kubaard
Petronella Moensstrjitte 10, Kubaard
Petronella Moensstrjitte 10, Kubaard

Plattegronden

Locatie

Contact opnemen

×
Petronella Moensstrjitte 10, Kubaard
Petronella Moensstrjitte 10, Kubaard
Petronella Moensstrjitte 10, Kubaard
Petronella Moensstrjitte 10, Kubaard
Petronella Moensstrjitte 10, Kubaard
Petronella Moensstrjitte 10, Kubaard
Petronella Moensstrjitte 10, Kubaard
Petronella Moensstrjitte 10, Kubaard
Petronella Moensstrjitte 10, Kubaard
Petronella Moensstrjitte 10, Kubaard
Petronella Moensstrjitte 10, Kubaard
Petronella Moensstrjitte 10, Kubaard
Petronella Moensstrjitte 10, Kubaard
Petronella Moensstrjitte 10, Kubaard
Petronella Moensstrjitte 10, Kubaard
Petronella Moensstrjitte 10, Kubaard
Petronella Moensstrjitte 10, Kubaard
Petronella Moensstrjitte 10, Kubaard
Petronella Moensstrjitte 10, Kubaard
Petronella Moensstrjitte 10, Kubaard
Petronella Moensstrjitte 10, Kubaard
Petronella Moensstrjitte 10, Kubaard
Petronella Moensstrjitte 10, Kubaard
Petronella Moensstrjitte 10, Kubaard
Petronella Moensstrjitte 10, Kubaard
Petronella Moensstrjitte 10, Kubaard
Petronella Moensstrjitte 10, Kubaard
Petronella Moensstrjitte 10, Kubaard
Petronella Moensstrjitte 10, Kubaard
Petronella Moensstrjitte 10, Kubaard
Petronella Moensstrjitte 10, Kubaard
Petronella Moensstrjitte 10, Kubaard
Petronella Moensstrjitte 10, Kubaard
Petronella Moensstrjitte 10, Kubaard
Petronella Moensstrjitte 10, Kubaard
Petronella Moensstrjitte 10, Kubaard
Petronella Moensstrjitte 10, Kubaard
Petronella Moensstrjitte 10, Kubaard
Petronella Moensstrjitte 10, Kubaard
Petronella Moensstrjitte 10, Kubaard
Petronella Moensstrjitte 10, Kubaard
Petronella Moensstrjitte 10, Kubaard
Petronella Moensstrjitte 10, Kubaard
Petronella Moensstrjitte 10, Kubaard
Petronella Moensstrjitte 10, Kubaard
Petronella Moensstrjitte 10, Kubaard
Petronella Moensstrjitte 10, Kubaard
×
Petronella Moensstrjitte 10, Kubaard
Petronella Moensstrjitte 10, Kubaard
Petronella Moensstrjitte 10, Kubaard