Kerkstraat 57

Bolsward

beschikbaar

€ 280.000,- k.k.

Omschrijving

Goed onderhouden starterswoning in de binnenstad van Bolsward!
In één van de oudste straten van het centrum van de stad Bolsward staat deze mooi verbouwde stadswoning. De woning beschikt over 3 slaapkamers, een dakterras en een kleine achtertuin. Vanaf het dakterras is er een mooi zicht op het "Bolwerk". Vanuit de woning wandelt u meteen het sfeervolle stadsleven in en kunt u genieten van de rijke historie van Bolsward, en de vele winkeltjes en bezienswaardigheden. De woning staat op een perceel eigen grond van 84 m².

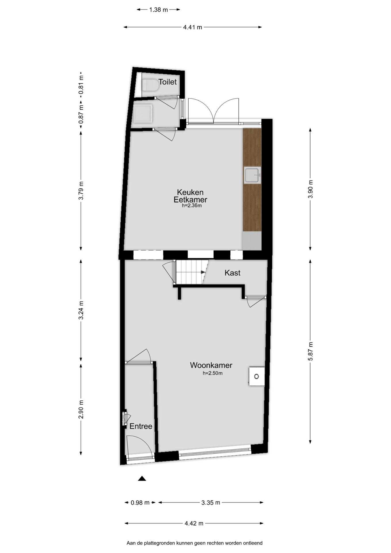
Indeling
Entree, hal en meterkast. De sfeervolle woonkamer beschikt over een balkenplafond en een rookkanaal met houtkachel (ter overname). In de tussenwand naar de keuken bevindt zich een vaste kast met veel bergruimte onder de trap en een toegangsdeur naar de trapopgang. De ruime woonkeuken bevindt zich aan de achterzijde van de woning. De donkere kastjes en het houten werkblad met de fraaie tegelwand geven de keuken een moderne en warme uitstraling. De openslaande tuindeuren zorgen voor een directe verbinding met de beschutte binnenplaats. Via de compacte bijkeuken is er toegang naar de toiletruimte. In de bijkeuken is plaats voor de wasmachine en wasdroger.

Eerste verdieping
De eerste verdieping is handig ingedeeld met overloop, badkamer en 3 slaapkamers.
Aan de voorzijde bevinden zich 2 slaapkamers. De slaapkamer aan de achterzijde is voorzien van een vaste kast en een deur naar het dakterras. De moderne badkamer is voorzien van een douche en een wastafelmeubel. Het dakterras heeft een oppervlakte van circa 22 m² en een zonligging op het zuidoosten. Het uitzicht hiervandaan richting het "Bolwerk" is prachtig.

Tuin
De achtertuin heeft een ligging op het zuidoosten. Dit knusse binnenplaatsje is onderhoudsvriendelijk aangelegd met grote terrastegels. Er is geen achterom aanwezig.

Bijzonderheden
* Energielabel E;
* Intergas cv-ketel 2020;
* 3 slaapkamers;
* Groot dakterras 22 m²;
* Gezellige binnenplaats;
* Mooie locatie bij stadscentrum;
* In de directe omgeving parkeergelegenheid;
* Op loopafstand van alle stadsvoorzieningen;
* Dankzij de A7 zijn de Randstad en Groningen in ± één uur te bereiken;
* Bezichtiging uitsluitend via de makelaar.
+ Lees de volledige omschrijving

Kenmerken

Overdracht

Vraagprijs € 280.000,- k.k.
Status beschikbaar
Aanvaarding in overleg

Bouw

Soort woning woonhuis
Soort woonhuis eengezinswoning
Type woonhuis tussenwoning
Aantal woonlagen 2
Kwaliteit normaal
Bouwvorm bestaande bouw
Bouwperiode -1906
Dak zadeldak

Energie

Energielabel E
Verwarming c.v.-ketel en houtkachel
Warm water c.v.-ketel
C.V.-ketel gas gestookte combi-ketel uit 2020 van Intergas, eigendom

Oppervlakten en inhoud

Woonoppervlakte 75 m²
Perceeloppervlakte 84 m²
Inhoud 256 m³
Buitenruimte oppervlakte 22 m²

Indeling

Aantal kamers 4
Aantal slaapkamers 3

Buitenruimte

Tuin Achtertuin met een oppervlakte van 10 m² en is gelegen op het zuidoosten

Foto's

Kerkstraat 57, Bolsward
Kerkstraat 57, Bolsward
Kerkstraat 57, Bolsward
Kerkstraat 57, Bolsward
Kerkstraat 57, Bolsward
Kerkstraat 57, Bolsward
Kerkstraat 57, Bolsward
Kerkstraat 57, Bolsward
Kerkstraat 57, Bolsward
Kerkstraat 57, Bolsward
Kerkstraat 57, Bolsward
Kerkstraat 57, Bolsward
Kerkstraat 57, Bolsward
Kerkstraat 57, Bolsward
Kerkstraat 57, Bolsward
Kerkstraat 57, Bolsward
Kerkstraat 57, Bolsward
Kerkstraat 57, Bolsward
Kerkstraat 57, Bolsward
Kerkstraat 57, Bolsward
Kerkstraat 57, Bolsward
Kerkstraat 57, Bolsward
Kerkstraat 57, Bolsward
Kerkstraat 57, Bolsward
Kerkstraat 57, Bolsward
Kerkstraat 57, Bolsward
Kerkstraat 57, Bolsward
Kerkstraat 57, Bolsward
Kerkstraat 57, Bolsward
Kerkstraat 57, Bolsward
Kerkstraat 57, Bolsward
Kerkstraat 57, Bolsward
Kerkstraat 57, Bolsward
Kerkstraat 57, Bolsward

Plattegronden

Locatie

Contact opnemen

×
Kerkstraat 57, Bolsward
Kerkstraat 57, Bolsward
Kerkstraat 57, Bolsward
Kerkstraat 57, Bolsward
Kerkstraat 57, Bolsward
Kerkstraat 57, Bolsward
Kerkstraat 57, Bolsward
Kerkstraat 57, Bolsward
Kerkstraat 57, Bolsward
Kerkstraat 57, Bolsward
Kerkstraat 57, Bolsward
Kerkstraat 57, Bolsward
Kerkstraat 57, Bolsward
Kerkstraat 57, Bolsward
Kerkstraat 57, Bolsward
Kerkstraat 57, Bolsward
Kerkstraat 57, Bolsward
Kerkstraat 57, Bolsward
Kerkstraat 57, Bolsward
Kerkstraat 57, Bolsward
Kerkstraat 57, Bolsward
Kerkstraat 57, Bolsward
Kerkstraat 57, Bolsward
Kerkstraat 57, Bolsward
Kerkstraat 57, Bolsward
Kerkstraat 57, Bolsward
Kerkstraat 57, Bolsward
Kerkstraat 57, Bolsward
Kerkstraat 57, Bolsward
Kerkstraat 57, Bolsward
Kerkstraat 57, Bolsward
Kerkstraat 57, Bolsward
Kerkstraat 57, Bolsward
Kerkstraat 57, Bolsward
×
Kerkstraat 57, Bolsward
Kerkstraat 57, Bolsward