Floridus Campuslaan 26

Bolsward

verkocht onder voorbehoud

€ 395.000,- k.k.

Omschrijving

Ruime hoekwoning met aangebouwde luxe keuken, grote garage en carport aan de rand van de stad!
Deze fijne gezinswoning staat op een rustige woonlocatie en beschikt over een zonnige woonkamer, een moderne keuken met kookeiland, 3 slaapkamers en een ruime bergzolder. Tot de woning behoort een perceel eigen grond van 362 m². Het perceel heeft aan de voorzijde ruimte om te parkeren en aan de achterzijde een prachtige tuin met een goede zonligging en veel privacy.

De vriendelijke stad Bolsward heeft een uitstekende ligging aan de A7. De diverse stadsvoorzieningen en de vele sportvoorzieningen zijn op korte afstand van deze woning.

Indeling
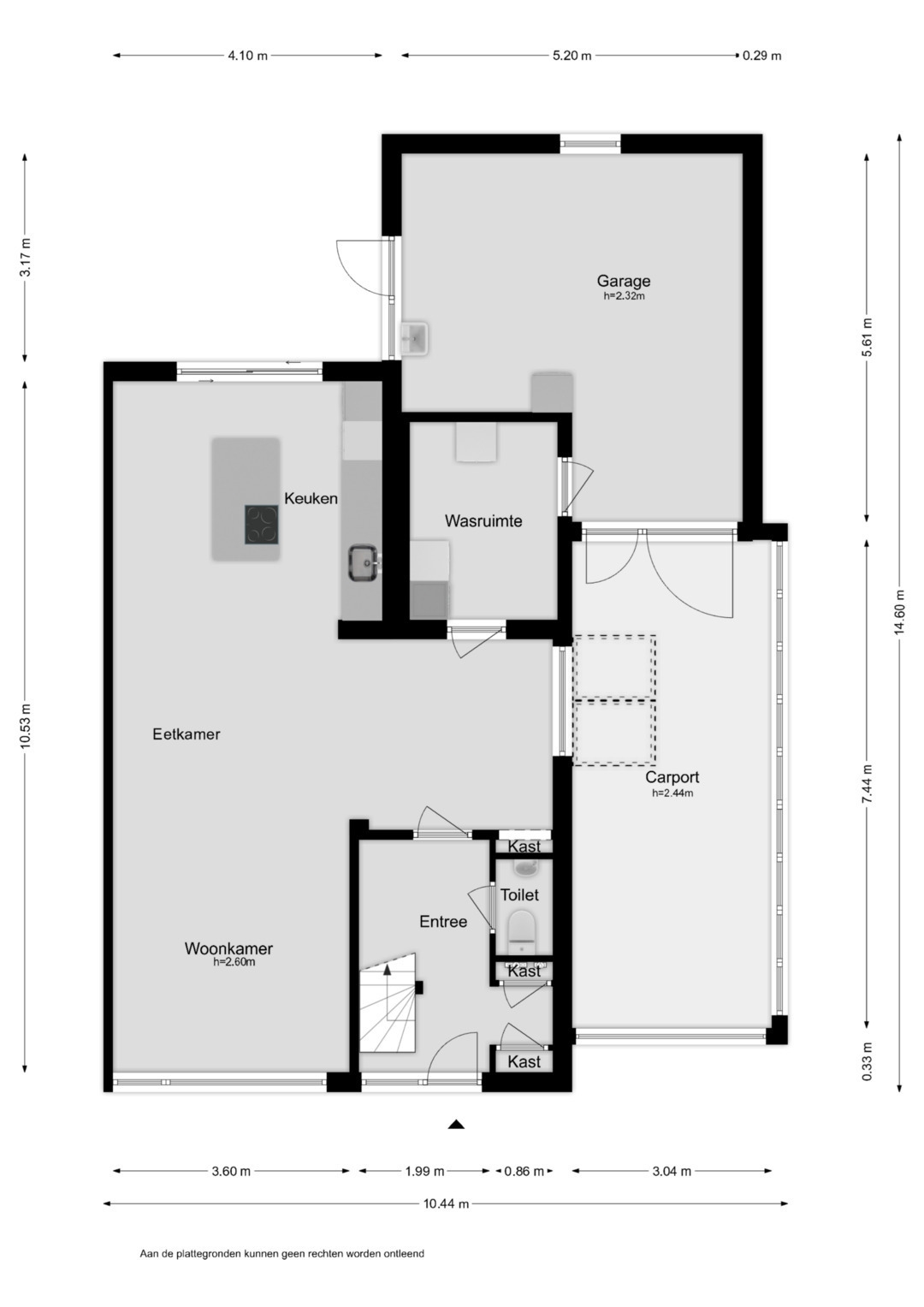
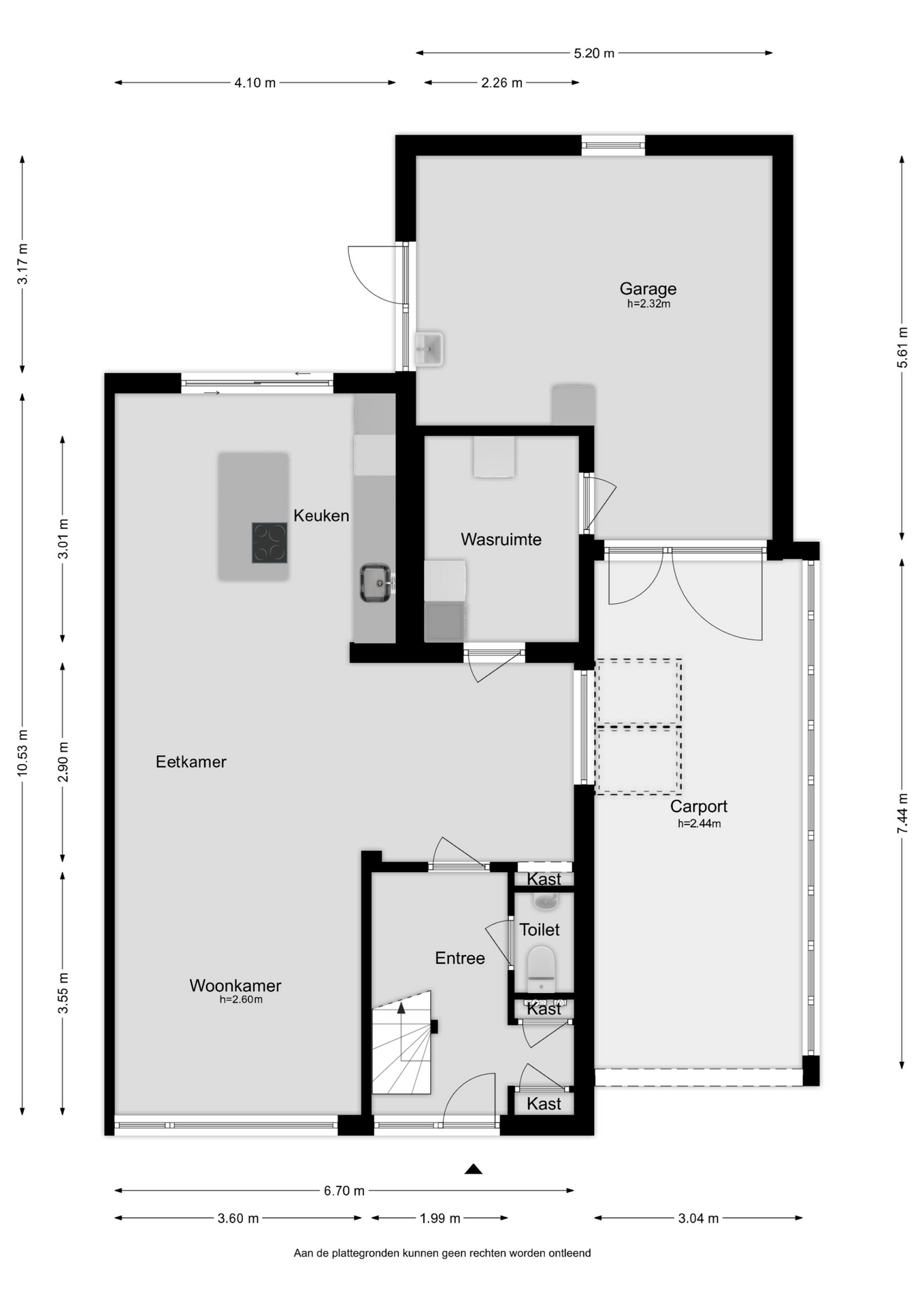
Entree, royale hal met meterkast, toilet en trapopgang. De hal, keuken en woonkamer zijn recent voorzien van een geïsoleerde betonvloer met vloerverwarming. De ruime L-vormige woonkamer heeft veel lichtinval. Vanuit het zitgedeelte heeft u een prachtig zicht in de straat en richting de rondweg. De woonkamer is aan de achterzijde uitgebouwd, waardoor een royale keuken is ontstaan met kookeiland en wandopstelling met inbouwapparatuur. De 2 openslaande deuren vormen een directe verbinding met het terras in de achtertuin. In de naastgelegen wasruimte is plaats voor de witgoed-aansluitingen en hiervandaan is tevens de garage bereikbaar. De ruime L-vormige garage van 24 m² biedt ruimte voor hobby's. Aan de voorzijde van de garage bevindt zich een ruime carport waar u uw auto of aanhanger droog kunt parkeren. Vanuit de garage is er toegang naar de grote achtertuin met uitstekende zonligging.

Eerste verdieping
Op de eerste verdieping is er vanaf de centrale overloop toegang naar de 3 slaapkamers en de badkamer. De badkamer is voorzien van een ligbad, doucheruimte, wastafel en toilet. Vanaf de overloop is er middels een vlizotrap toegang naar de ruime bergzolder met cv-opstelling.

Tweede verdieping
Middels een vlizotrap is er toegang naar de ruime zolderverdieping met cv-ketel opstelling.

Tuin
De voortuin met plantenborder heeft een zonligging op het zuidwesten. De brede oprit is geschikt voor het parkeren van 2 auto's en naast de woning staat een ruime carport. De achtertuin is op het noordoosten gelegen en aangelegd met een terras, een overkapping, gazon en plantenborders. De tuin biedt veel privacy. Door de ruime afmetingen van het perceel zijn er altijd zon en schaduwplekken te vinden.


Bijzonderheden
* Moderne keuken met kookeiland 2024;
* 3 slaapkamers en een royale bergzolder;
* Kunststof kozijnen aan de voorzijde van de 1e verdieping;
* Nefit cv-ketel 2016;
* Vloerverwarming in de hal, keuken en woonkamer;
* Energielabel D;
* Tuin met ruime afmetingen;
* Royaal perceel eigen grond;
* Oprit voor 2 auto's en een carport;
* Rustige locatie op korte afstand van de voorzieningen van Bolsward;
* Dankzij de A7 zijn de Randstad en Groningen in ± één uur te bereiken;
* Bezichtiging uitsluitend via de makelaar.
+ Lees de volledige omschrijving

Kenmerken

Overdracht

Vraagprijs € 395.000,- k.k.
Status verkocht onder voorbehoud
Aanvaarding in overleg

Bouw

Soort woning woonhuis
Soort woonhuis eengezinswoning
Type woonhuis hoekwoning
Aantal woonlagen 3
Kwaliteit normaal
Bouwvorm bestaande bouw
Bouwperiode 1960-1970
Dak dwarskap

Energie

Energielabel D
Verwarming c.v.-ketel
Warm water c.v.-ketel
C.V.-ketel gas gestookte combi-ketel uit 2016 van Nefit, eigendom

Oppervlakten en inhoud

Woonoppervlakte 114 m²
Perceeloppervlakte 362 m²
Inhoud 548 m³
Inpandigeruimte oppervlakte 38 m²
Buitenruimte oppervlakte 22 m²

Indeling

Aantal kamers 5
Aantal slaapkamers 3

Buitenruimte

Tuin Achtertuin met een oppervlakte van 140 m² en is gelegen op het noordoosten

Bergruimte

Garage aangebouwde stenen garage

Foto's

Floridus Campuslaan 26, Bolsward
Floridus Campuslaan 26, Bolsward
Floridus Campuslaan 26, Bolsward
Floridus Campuslaan 26, Bolsward
Floridus Campuslaan 26, Bolsward
Floridus Campuslaan 26, Bolsward
Floridus Campuslaan 26, Bolsward
Floridus Campuslaan 26, Bolsward
Floridus Campuslaan 26, Bolsward
Floridus Campuslaan 26, Bolsward
Floridus Campuslaan 26, Bolsward
Floridus Campuslaan 26, Bolsward
Floridus Campuslaan 26, Bolsward
Floridus Campuslaan 26, Bolsward
Floridus Campuslaan 26, Bolsward
Floridus Campuslaan 26, Bolsward
Floridus Campuslaan 26, Bolsward
Floridus Campuslaan 26, Bolsward
Floridus Campuslaan 26, Bolsward
Floridus Campuslaan 26, Bolsward
Floridus Campuslaan 26, Bolsward
Floridus Campuslaan 26, Bolsward
Floridus Campuslaan 26, Bolsward
Floridus Campuslaan 26, Bolsward
Floridus Campuslaan 26, Bolsward
Floridus Campuslaan 26, Bolsward
Floridus Campuslaan 26, Bolsward
Floridus Campuslaan 26, Bolsward
Floridus Campuslaan 26, Bolsward
Floridus Campuslaan 26, Bolsward
Floridus Campuslaan 26, Bolsward
Floridus Campuslaan 26, Bolsward
Floridus Campuslaan 26, Bolsward
Floridus Campuslaan 26, Bolsward
Floridus Campuslaan 26, Bolsward
Floridus Campuslaan 26, Bolsward
Floridus Campuslaan 26, Bolsward
Floridus Campuslaan 26, Bolsward
Floridus Campuslaan 26, Bolsward
Floridus Campuslaan 26, Bolsward
Floridus Campuslaan 26, Bolsward
Floridus Campuslaan 26, Bolsward
Floridus Campuslaan 26, Bolsward

Plattegronden

Locatie

Contact opnemen

×
Floridus Campuslaan 26, Bolsward
Floridus Campuslaan 26, Bolsward
Floridus Campuslaan 26, Bolsward
Floridus Campuslaan 26, Bolsward
Floridus Campuslaan 26, Bolsward
Floridus Campuslaan 26, Bolsward
Floridus Campuslaan 26, Bolsward
Floridus Campuslaan 26, Bolsward
Floridus Campuslaan 26, Bolsward
Floridus Campuslaan 26, Bolsward
Floridus Campuslaan 26, Bolsward
Floridus Campuslaan 26, Bolsward
Floridus Campuslaan 26, Bolsward
Floridus Campuslaan 26, Bolsward
Floridus Campuslaan 26, Bolsward
Floridus Campuslaan 26, Bolsward
Floridus Campuslaan 26, Bolsward
Floridus Campuslaan 26, Bolsward
Floridus Campuslaan 26, Bolsward
Floridus Campuslaan 26, Bolsward
Floridus Campuslaan 26, Bolsward
Floridus Campuslaan 26, Bolsward
Floridus Campuslaan 26, Bolsward
Floridus Campuslaan 26, Bolsward
Floridus Campuslaan 26, Bolsward
Floridus Campuslaan 26, Bolsward
Floridus Campuslaan 26, Bolsward
Floridus Campuslaan 26, Bolsward
Floridus Campuslaan 26, Bolsward
Floridus Campuslaan 26, Bolsward
Floridus Campuslaan 26, Bolsward
Floridus Campuslaan 26, Bolsward
Floridus Campuslaan 26, Bolsward
Floridus Campuslaan 26, Bolsward
Floridus Campuslaan 26, Bolsward
Floridus Campuslaan 26, Bolsward
Floridus Campuslaan 26, Bolsward
Floridus Campuslaan 26, Bolsward
Floridus Campuslaan 26, Bolsward
Floridus Campuslaan 26, Bolsward
Floridus Campuslaan 26, Bolsward
Floridus Campuslaan 26, Bolsward
Floridus Campuslaan 26, Bolsward
×
Floridus Campuslaan 26, Bolsward
Floridus Campuslaan 26, Bolsward
Floridus Campuslaan 26, Bolsward