Dijkstraat 41

Bolsward

beschikbaar

€ 375.000,- k.k.

Omschrijving

Woon-/winkelpand met ruime bovenwoning, royaal dakterras en parkeerruimte!

Op een uitstekende locatie aan de hoofstraat van het centrum van Bolsward staat dit winkel-/kantoorpand met ruime bovenwoning. Het bedrijfspand heeft de ingang aan Dijkstraat 41; de bovenwoning is aan de achterzijde van het pand bereikbaar en heeft als adres: Stoombootkade 31A.
Het woonhuis beschikt over een ruime woonkamer, 3 slaapkamers en een groot dakterras.
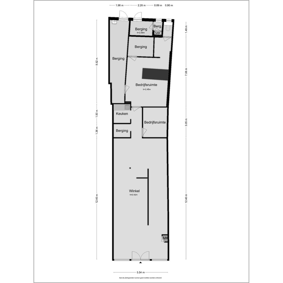
De voorzijde van het bedrijfspand is ingericht als winkelruimte; het achterliggende deel bestaat uit kantoorruimtes, keuken, toilet en verschillende bergingen.
Winkel en woning hebben gescheiden nutsvoorzieningen.

Het geheel is gelegen op een perceel eigen grond van 240 m².

Indeling
Begane grond:
Entree (dubbele glazendeur), meterkast, winkelruimte 12,40x5,54 m. 2 kantoorruimtes, keukenblok met spoelbak. In de achtergelegen bedrijfsruimte bevindt zich een werkruimte met airconditioning, tevens zijn er een toilet en bergruimte aanwezig. Aan de achterzijde van het pand bevindt zich een een ruime achterhal met toegang naar de parkeerplaats. Tevens is hier de cv-opstelling van de winkelruimte aanwezig. Aan de achterzijde van het pand bevindt zich een aparte berging met meterkast voor de bovenwoning.

Eerste verdieping
Woonhuis, Stoombootkade 31A:
De ingang van de bovenwoning is aan achterzijde van het pand. Middels een stalen trapopgang is er toegang naar het dakterras waar zich de toegangsdeur van de woning bevindt. Vanaf het dakterras heeft u uitzicht op het Elfstedenwater.
De indeling is als volgt: Hal, ruime woonkamer met veel lichtinval door de hoge ramen. Hiervandaan is er mooi zicht op de levendigheid van het centrum. De keuken heeft een wandopstelling en is voorzien van inbouwapparatuur. 2 Lichtkoepels zorgen hier voor extra daglicht. Tussen de woonkamer en keuken is een sanitaire ruimte gesitueerd met een toilet en een badkamer met douche en wastafel. Vanuit de hal is er tevens toegang naar een slaapkamer en een wasruimte. De slaapkamer heeft goede afmetingen en een raam met uitzicht op het dakterras. In de wasruimte bevinden zich de witgoedaansluitingen, een grote berging en een trap naar de 2e verdieping.

Tweede verdieping
Op de tweede verdieping bevinden zich een overloop met cv-installatie en 2 slaapkamers. Beide slaapkamers beschikken over een groot dakvenster. Middels een raamkozijn is er toegang naar het plattedak.

Bijzonderheden
* A-locatie bij stadsgracht en centrum;
* Combinatie wonen en werken;
* Parkeren op eigen erf;
* Op loopafstand van alle stadsvoorzieningen;
* Ruime bovenwoning;
* Beschermd stadsgezicht;
* Bestemming: Gemengd 1;
* Dijkstraat 41 Winkelruimte: Energielabel A+;
* Stoombootkade 31A Woonruimte: Energielabel E;
* Winkel en woning hebben gescheiden nutsvoorzieningen;
* In de directe omgeving parkeergelegenheid;
* Dankzij de A7 zijn de Randstad en Groningen in ± één uur te bereiken;
* Bezichtiging uitsluitend via de makelaar.
+ Lees de volledige omschrijving

Kenmerken

Overdracht

Vraagprijs € 375.000,- k.k.
Status beschikbaar
Aanvaarding in overleg

Bouw

Soort woning woonhuis
Soort woonhuis eengezinswoning
Type woonhuis geschakelde woning
Aantal woonlagen 2
Kwaliteit normaal
Bouwvorm bestaande bouw
Bouwperiode -1906
Dak schilddak

Energie

Energielabel E
Verwarming c.v.-ketel
Warm water c.v.-ketel
C.V.-ketel gas gestookte combi-ketel uit 2015 van Nefit, eigendom

Oppervlakten en inhoud

Woonoppervlakte 113 m²
Perceeloppervlakte 240 m²
Inhoud 382 m³
Buitenruimte oppervlakte 46 m²

Indeling

Aantal kamers 4
Aantal slaapkamers 3

Bergruimte

Schuur/berging inpandig

Foto's

Dijkstraat 41, Bolsward
Dijkstraat 41, Bolsward
Dijkstraat 41, Bolsward
Dijkstraat 41, Bolsward
Dijkstraat 41, Bolsward
Dijkstraat 41, Bolsward
Dijkstraat 41, Bolsward
Dijkstraat 41, Bolsward
Dijkstraat 41, Bolsward
Dijkstraat 41, Bolsward
Dijkstraat 41, Bolsward
Dijkstraat 41, Bolsward
Dijkstraat 41, Bolsward
Dijkstraat 41, Bolsward
Dijkstraat 41, Bolsward
Dijkstraat 41, Bolsward
Dijkstraat 41, Bolsward
Dijkstraat 41, Bolsward
Dijkstraat 41, Bolsward
Dijkstraat 41, Bolsward
Dijkstraat 41, Bolsward
Dijkstraat 41, Bolsward
Dijkstraat 41, Bolsward
Dijkstraat 41, Bolsward
Dijkstraat 41, Bolsward
Dijkstraat 41, Bolsward
Dijkstraat 41, Bolsward
Dijkstraat 41, Bolsward
Dijkstraat 41, Bolsward
Dijkstraat 41, Bolsward
Dijkstraat 41, Bolsward
Dijkstraat 41, Bolsward
Dijkstraat 41, Bolsward
Dijkstraat 41, Bolsward
Dijkstraat 41, Bolsward
Dijkstraat 41, Bolsward
Dijkstraat 41, Bolsward
Dijkstraat 41, Bolsward
Dijkstraat 41, Bolsward
Dijkstraat 41, Bolsward
Dijkstraat 41, Bolsward
Dijkstraat 41, Bolsward
Dijkstraat 41, Bolsward
Dijkstraat 41, Bolsward
Dijkstraat 41, Bolsward
Dijkstraat 41, Bolsward
Dijkstraat 41, Bolsward
Dijkstraat 41, Bolsward
Dijkstraat 41, Bolsward
Dijkstraat 41, Bolsward

Plattegronden

Locatie

Contact opnemen

×
Dijkstraat 41, Bolsward
Dijkstraat 41, Bolsward
Dijkstraat 41, Bolsward
Dijkstraat 41, Bolsward
Dijkstraat 41, Bolsward
Dijkstraat 41, Bolsward
Dijkstraat 41, Bolsward
Dijkstraat 41, Bolsward
Dijkstraat 41, Bolsward
Dijkstraat 41, Bolsward
Dijkstraat 41, Bolsward
Dijkstraat 41, Bolsward
Dijkstraat 41, Bolsward
Dijkstraat 41, Bolsward
Dijkstraat 41, Bolsward
Dijkstraat 41, Bolsward
Dijkstraat 41, Bolsward
Dijkstraat 41, Bolsward
Dijkstraat 41, Bolsward
Dijkstraat 41, Bolsward
Dijkstraat 41, Bolsward
Dijkstraat 41, Bolsward
Dijkstraat 41, Bolsward
Dijkstraat 41, Bolsward
Dijkstraat 41, Bolsward
Dijkstraat 41, Bolsward
Dijkstraat 41, Bolsward
Dijkstraat 41, Bolsward
Dijkstraat 41, Bolsward
Dijkstraat 41, Bolsward
Dijkstraat 41, Bolsward
Dijkstraat 41, Bolsward
Dijkstraat 41, Bolsward
Dijkstraat 41, Bolsward
Dijkstraat 41, Bolsward
Dijkstraat 41, Bolsward
Dijkstraat 41, Bolsward
Dijkstraat 41, Bolsward
Dijkstraat 41, Bolsward
Dijkstraat 41, Bolsward
Dijkstraat 41, Bolsward
Dijkstraat 41, Bolsward
Dijkstraat 41, Bolsward
Dijkstraat 41, Bolsward
Dijkstraat 41, Bolsward
Dijkstraat 41, Bolsward
Dijkstraat 41, Bolsward
Dijkstraat 41, Bolsward
Dijkstraat 41, Bolsward
Dijkstraat 41, Bolsward
×
Dijkstraat 41, Bolsward
Dijkstraat 41, Bolsward
Dijkstraat 41, Bolsward