De Drift 32

Bolsward

verkocht onder voorbehoud

€ 425.000,- k.k.

Omschrijving

Ruime gezinswoning!
Op een mooie hoekkavel in de woonwijk Eekwerd staat deze ruime twee-onder-één-kapwoning met garage. De woning is voorzien van een hybride warmtepomp, 8 zonnepanelen en heeft een energielabel B. Verder beschikt de woning over een ruime woonkamer, bijkeuken en 4 slaapkamers. Tot de woning behoort een mooie achtertuin met parkeerruimte voor uw auto op de oprit aan de achterzijde. Het geheel is gelegen op een perceel eigen grond van 383 m².

Eekwerd is een rustige, kindvriendelijke woonwijk met veel groen, waterpartijen en een basisschool. Alle stadsvoorzieningen van Bolsward zijn op wandel- of fietsafstand.

Indeling
Entree, toilet, meterkast, vaste kast en trapopgang. De woning beschikt over een ruime L-vormige woonkamer met veel lichtinval door de grote raampartijen aan voor- en achterzijde. De gesloten keuken heeft ruime afmetingen met een eenvoudig keukenblok en is gelegen aan de zijkant van de woning. De bijkeuken aan de achterzijde heeft een tuindeur naar de achtertuin en een deur naar de garage. In de bijkeuken is er plaats voor de witgoedopstelling. De beschutte achtertuin heeft een zonligging op het noordwesten. De garage heeft een ruime oprit aan de achterzijde.

Eerste verdieping
De eerste verdieping biedt veel ruimte door de recht opgetrokken gevels. Deze verdieping beschikt over een centrale overloop en 3 slaapkamers met goede afmetingen en veel lichtinval. De badkamer is voorzien van een douche, een 2e toilet en een wastafel.

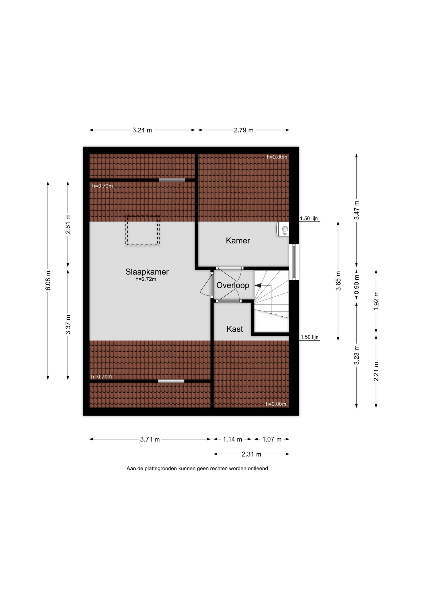
Tweede verdieping
Een vaste trap leidt naar de 2e verdieping met een overloop en een 4e slaapkamer met goed bruikbare afmetingen. Aan weerszijden van de overloop bevinden zich ruime bergkasten, waarvan 1 met de cv-installatie.

Tuin
De ruime voortuin is voorzien van diverse beplanting en bestrating. De ligging is op het zuidoosten.
De groene achtertuin is omheind door een heg en voorzien van bestrating, gazon en diverse beplanting. In de achtertuin is ook een houten overkapping aanwezig. Naast de achtertuin bevindt zich de ruime oprit naar de garage. Deze oprit biedt voldoende parkeerruimte.

Bijzonderheden
* Ruime gezinswoning in rustige woonwijk;
* Garage met ruime oprit;
* 3x Betonvloer;
* 4 slaapkamers;
* Energielabel B;
* Nefit cv-ketel 2011;
* Hybride warmtepomp Quatt 2024;
* 8 zonnepanelen 2019;
* Airconditioning op 1 slaapkamer;
* Gelegen op korte afstand van de supermarkten en sportvoorzieningen;
* Dankzij de A7 zijn de Randstad en Groningen in ± één uur te bereiken.
* Bezichtiging uitsluitend via de makelaar.
+ Lees de volledige omschrijving

Kenmerken

Overdracht

Vraagprijs € 425.000,- k.k.
Status verkocht onder voorbehoud
Aanvaarding in overleg

Bouw

Soort woning woonhuis
Soort woonhuis eengezinswoning
Type woonhuis 2-onder-1-kapwoning
Aantal woonlagen 3
Bouwvorm bestaande bouw
Bouwperiode 1971-1980
Dak dwarskap
Voorzieningen zonnecollectoren

Energie

Energielabel B
Verwarming c.v.-ketel en warmtepomp
Warm water c.v.-ketel
C.V.-ketel gas gestookte combi-ketel uit 2011 van Nefit Proline, eigendom

Oppervlakten en inhoud

Woonoppervlakte 135 m²
Perceeloppervlakte 383 m²
Inhoud 542 m³
Inpandigeruimte oppervlakte 17 m²

Indeling

Aantal kamers 5
Aantal slaapkamers 4

Buitenruimte

Tuin Achtertuin met een oppervlakte van 90 m² en is gelegen op het noordwesten

Bergruimte

Garage inpandige garage

Foto's

De Drift 32, Bolsward
De Drift 32, Bolsward
De Drift 32, Bolsward
De Drift 32, Bolsward
De Drift 32, Bolsward
De Drift 32, Bolsward
De Drift 32, Bolsward
De Drift 32, Bolsward
De Drift 32, Bolsward
De Drift 32, Bolsward
De Drift 32, Bolsward
De Drift 32, Bolsward
De Drift 32, Bolsward
De Drift 32, Bolsward
De Drift 32, Bolsward
De Drift 32, Bolsward
De Drift 32, Bolsward
De Drift 32, Bolsward
De Drift 32, Bolsward
De Drift 32, Bolsward
De Drift 32, Bolsward
De Drift 32, Bolsward
De Drift 32, Bolsward
De Drift 32, Bolsward
De Drift 32, Bolsward
De Drift 32, Bolsward
De Drift 32, Bolsward
De Drift 32, Bolsward
De Drift 32, Bolsward
De Drift 32, Bolsward
De Drift 32, Bolsward
De Drift 32, Bolsward
De Drift 32, Bolsward
De Drift 32, Bolsward
De Drift 32, Bolsward
De Drift 32, Bolsward

Plattegronden

Locatie

Contact opnemen

×
De Drift 32, Bolsward
De Drift 32, Bolsward
De Drift 32, Bolsward
De Drift 32, Bolsward
De Drift 32, Bolsward
De Drift 32, Bolsward
De Drift 32, Bolsward
De Drift 32, Bolsward
De Drift 32, Bolsward
De Drift 32, Bolsward
De Drift 32, Bolsward
De Drift 32, Bolsward
De Drift 32, Bolsward
De Drift 32, Bolsward
De Drift 32, Bolsward
De Drift 32, Bolsward
De Drift 32, Bolsward
De Drift 32, Bolsward
De Drift 32, Bolsward
De Drift 32, Bolsward
De Drift 32, Bolsward
De Drift 32, Bolsward
De Drift 32, Bolsward
De Drift 32, Bolsward
De Drift 32, Bolsward
De Drift 32, Bolsward
De Drift 32, Bolsward
De Drift 32, Bolsward
De Drift 32, Bolsward
De Drift 32, Bolsward
De Drift 32, Bolsward
De Drift 32, Bolsward
De Drift 32, Bolsward
De Drift 32, Bolsward
De Drift 32, Bolsward
De Drift 32, Bolsward
×
De Drift 32, Bolsward
De Drift 32, Bolsward
De Drift 32, Bolsward