3e Hollandiastraat 4

Bolsward

verkocht onder voorbehoud

€ 250.000,- k.k.

Omschrijving

Op een mooie woonlocatie in de "Hollandiabuurt" staat deze geschakelde woning met voor- en achtertuin. De woning beschikt over een woonkamer, eetkeuken en 2 slaapkamers. De onderhoudsvriendelijke achtertuin heeft een achterom via de steeg. De woning staat op een perceel eigen grond van 160 m².

Bolsward is een vriendelijke stad met een rijke geschiedenis. In het historische centrum, langs de grachten en in het stadspark is het heerlijk wandelen. De woning heeft een gunstige ligging aan de rand van de stad. Via de A7 zijn de Randstad en Groningen in circa 1 uur bereikbaar.

Indeling
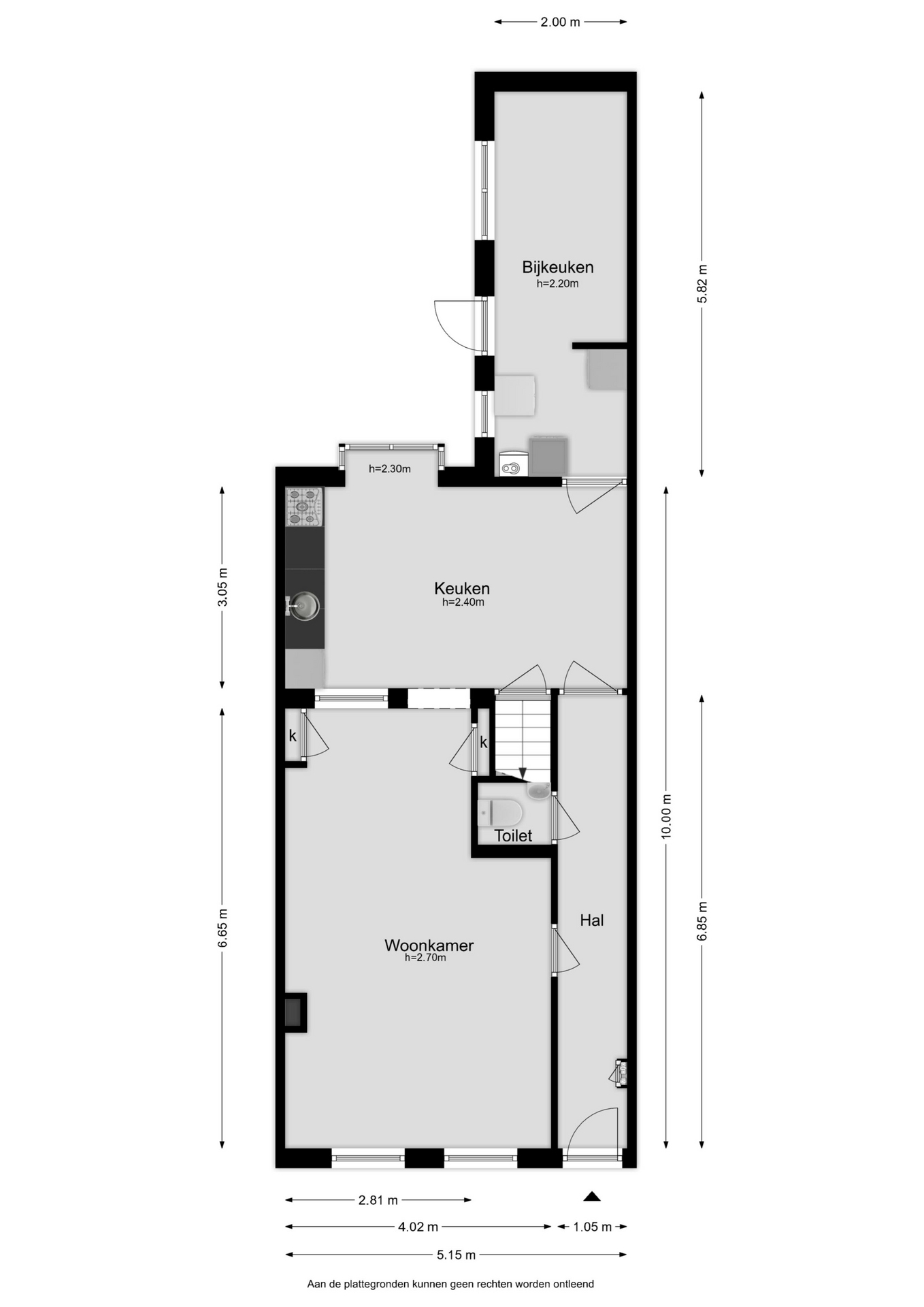
Entree, hal, meterkast en toilet. De woonkamer heeft veel lichtinval en beschikt over 2 inbouwkasten. Een tussenwand met open doorgang en venster vormt de scheiding tussen de woonkamer en de achterkamer. Hier is een ruime keuken gerealiseerd met voldoende plaats voor een flinke eethoek. De keuken is uitgevoerd in lichte kleurstellingen en voorzien van inbouwapparatuur. Vanuit de keuken is er toegang naar de bijkeuken. De bijkeuken is ruim opgezet met aan de voorzijde de witgoedaansluitingen en de cv-ketel en aan de achterzijde bergruimte. Via de achterdeur is de achtertuin bereikbaar.
De beschutte achtertuin is grotendeels betegeld en voorzien van een houten bergschuur en een achterom via de achtergelegen steeg.

Eerste verdieping
Rondom de centrale overloop bevinden zich 2 slaapkamers en een badkamer. De ruime ouderslaapkamer is gesitueerd aan de voorzijde van de woning en heeft extra lichtinval door de dakkapel. De verdieping is aan de achterzijde uitgebouwd, waardoor ook de 2e slaapkamer goed bruikbare afmetingen heeft. De badkamer is voorzien van een ruime douche en een wastafelmeubel.

Tuin
De achtertuin is op het noordwesten gelegen en grotendeels betegeld. Een houten bergschuur zorgt voor extra opbergruimte voor bijvoorbeeld fietsen. Tot de woning behoort een achterom via de achtergelegen steeg.
De voortuin heeft een fijne zonligging op het zuidoosten. Deze tuin is aangelegd met terras, borders en een ombouw voor de containers.

Bijzonderheden
* Vriendelijke locatie nabij het centrum;
* 2 slaapkamers;
* Ruime woonkamer en eetgedeelte;
* Cv-ketel Vaillant 2013;
* Energielabel D;
* Tuin met achterom;
* Parkeergelegenheid in de directe omgeving;
* Op loopafstand van alle stadsvoorzieningen;
* Dankzij de A7 zijn de Randstad en Groningen in ± één uur te bereiken.
* Bezichtiging uitsluitend via de makelaar.
+ Lees de volledige omschrijving

Kenmerken

Overdracht

Vraagprijs € 250.000,- k.k.
Status verkocht onder voorbehoud
Aanvaarding in overleg

Bouw

Soort woning woonhuis
Soort woonhuis eengezinswoning
Type woonhuis geschakelde woning
Aantal woonlagen 2
Kwaliteit normaal
Bouwvorm bestaande bouw
Bouwperiode 1906-1930
Dak samengesteld dak

Energie

Energielabel D
Verwarming c.v.-ketel
Warm water c.v.-ketel
C.V.-ketel gas gestookte combi-ketel uit 2013 van Vaillant, eigendom

Oppervlakten en inhoud

Woonoppervlakte 93 m²
Perceeloppervlakte 160 m²
Inhoud 329 m³

Indeling

Aantal kamers 3
Aantal slaapkamers 2

Buitenruimte

Tuin Achtertuin met een oppervlakte van 42 m² en is gelegen op het zuidoosten

Bergruimte

Schuur/berging aangebouwd hout

Foto's

3e Hollandiastraat 4, Bolsward
3e Hollandiastraat 4, Bolsward
3e Hollandiastraat 4, Bolsward
3e Hollandiastraat 4, Bolsward
3e Hollandiastraat 4, Bolsward
3e Hollandiastraat 4, Bolsward
3e Hollandiastraat 4, Bolsward
3e Hollandiastraat 4, Bolsward
3e Hollandiastraat 4, Bolsward
3e Hollandiastraat 4, Bolsward
3e Hollandiastraat 4, Bolsward
3e Hollandiastraat 4, Bolsward
3e Hollandiastraat 4, Bolsward
3e Hollandiastraat 4, Bolsward
3e Hollandiastraat 4, Bolsward
3e Hollandiastraat 4, Bolsward
3e Hollandiastraat 4, Bolsward
3e Hollandiastraat 4, Bolsward
3e Hollandiastraat 4, Bolsward
3e Hollandiastraat 4, Bolsward
3e Hollandiastraat 4, Bolsward
3e Hollandiastraat 4, Bolsward
3e Hollandiastraat 4, Bolsward
3e Hollandiastraat 4, Bolsward
3e Hollandiastraat 4, Bolsward
3e Hollandiastraat 4, Bolsward
3e Hollandiastraat 4, Bolsward
3e Hollandiastraat 4, Bolsward
3e Hollandiastraat 4, Bolsward
3e Hollandiastraat 4, Bolsward
3e Hollandiastraat 4, Bolsward

Plattegronden

Locatie

Contact opnemen

×
3e Hollandiastraat 4, Bolsward
3e Hollandiastraat 4, Bolsward
3e Hollandiastraat 4, Bolsward
3e Hollandiastraat 4, Bolsward
3e Hollandiastraat 4, Bolsward
3e Hollandiastraat 4, Bolsward
3e Hollandiastraat 4, Bolsward
3e Hollandiastraat 4, Bolsward
3e Hollandiastraat 4, Bolsward
3e Hollandiastraat 4, Bolsward
3e Hollandiastraat 4, Bolsward
3e Hollandiastraat 4, Bolsward
3e Hollandiastraat 4, Bolsward
3e Hollandiastraat 4, Bolsward
3e Hollandiastraat 4, Bolsward
3e Hollandiastraat 4, Bolsward
3e Hollandiastraat 4, Bolsward
3e Hollandiastraat 4, Bolsward
3e Hollandiastraat 4, Bolsward
3e Hollandiastraat 4, Bolsward
3e Hollandiastraat 4, Bolsward
3e Hollandiastraat 4, Bolsward
3e Hollandiastraat 4, Bolsward
3e Hollandiastraat 4, Bolsward
3e Hollandiastraat 4, Bolsward
3e Hollandiastraat 4, Bolsward
3e Hollandiastraat 4, Bolsward
3e Hollandiastraat 4, Bolsward
3e Hollandiastraat 4, Bolsward
3e Hollandiastraat 4, Bolsward
3e Hollandiastraat 4, Bolsward
×
3e Hollandiastraat 4, Bolsward
3e Hollandiastraat 4, Bolsward
3e Hollandiastraat 4, Bolsward