2e Hollandiastraat 29

Bolsward

verkocht onder voorbehoud

€ 295.000,- k.k.

Omschrijving

Sfeervolle woning vlakbij het stadscentrum van Bolsward!
Op een mooie woonlocatie staat deze goed onderhouden grotendeels vrijstaande woning met serre. Deze leuke, eigentijdse woning is verrassend ruim en beschikt over een moderne keuken, badkamer en 3 slaapkamers. Tot de woning behoort een verzorgde achtertuin met ruime afmetingen en een eigen achterom. De woning staat op een perceel eigen grond van 155 m².
Door de ligging nabij het stadscentrum zijn de voorzieningen en activiteiten van de gastvrije binnenstad van Bolsward op loopafstand.


Indeling
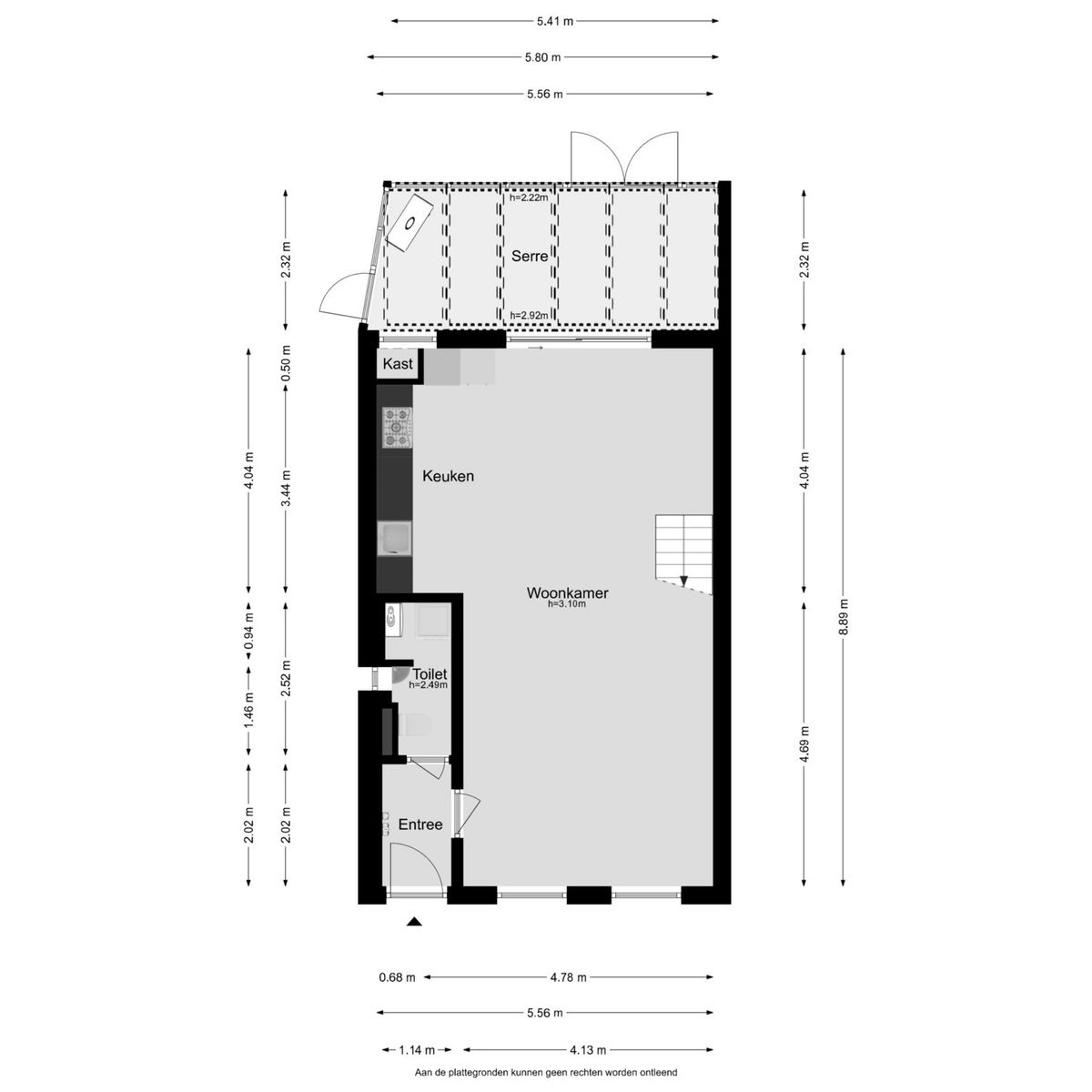
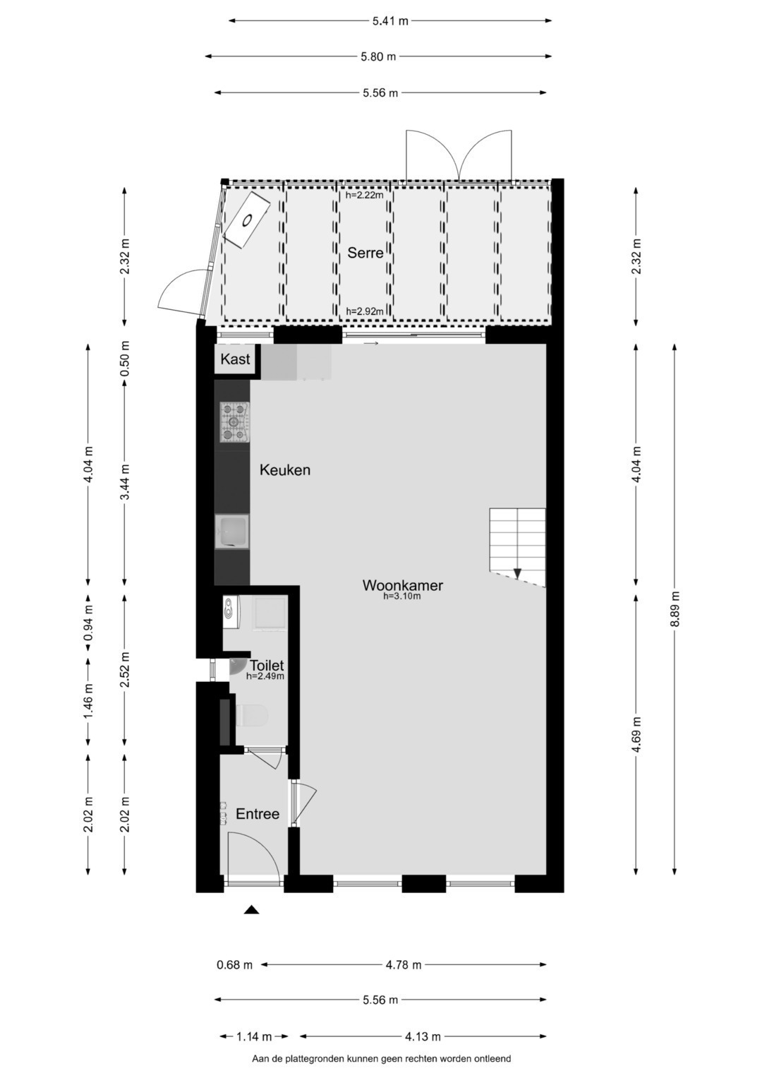
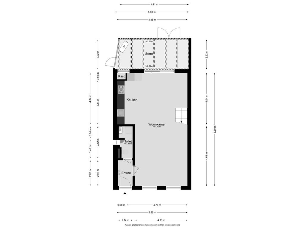
Entree, hal, meterkast, toilet. In de toiletruimte is tevens plaats voor de cv-installatie, de wasmachine en droger. De sfeervolle woonkamer met balkenplafond is uitgevoerd in moderne kleurstellingen en heeft veel lichtinval. De open hoekkeuken heeft veel bergruimte, een lang werkblad en diverse inbouwapparatuur. De grote schuifpui aan de achterzijde geeft toegang naar de aangebouwde serre. Hier kan men, doormiddel van de openslaande deuren, heerlijk beschut genieten van de achtertuin. De ruime achtertuin met houten bergschuur en overkapping beschikt over een achterom via de zijkant van de woning. De tuin heeft een zonligging op het noorden maar door de diepte van de tuin is er een goede zonligging.

Eerste verdieping
Een open trap in de woonkamer leidt naar de eerste verdieping. Deze verdieping bestaat uit een overloop, badkamer en 3 slaapkamers. De slaapkamer aan de voor- en achterzijde beschikken over praktische inbouwkasten.
De 3e slaapkamer en badkamer, welke in het midden van de woning liggen, hebben goed bruikbare afmetingen door de dakkapel. De moderne badkamer is voorzien van een douche, wastafelmeubel en een 2e toilet.


Tuin
De beschutte achtertuin op het noorden heeft een vrij achterom via de zijkant van de woning. De tuin is voorzien van bestrating, borders met vaste planten, een paar fruitbomen, een houten berging en een overkapping.

Bijzonderheden
* Verrassend ruime woning;
* Sfeervolle woonkamer met balkenplafond;
* Vriendelijke locatie nabij het centrum;
* moderne keuken en badkamer;
* Intergas cv-ketel 2018;
* Beschutte achtertuin met achterom;
* Parkeergelegenheid in de directe omgeving;
* Op loopafstand van alle stadsvoorzieningen;
* Dankzij de A7 zijn de Randstad en Groningen in ± één uur te bereiken.
* Bezichtiging uitsluitend via de makelaar.
+ Lees de volledige omschrijving

Kenmerken

Overdracht

Vraagprijs € 295.000,- k.k.
Status verkocht onder voorbehoud
Aanvaarding in overleg

Bouw

Soort woning woonhuis
Soort woonhuis eengezinswoning
Type woonhuis geschakelde woning
Aantal woonlagen 2
Kwaliteit normaal
Bouwvorm bestaande bouw
Bouwperiode 1906-1930
Dak zadeldak

Energie

Energielabel F
Verwarming c.v.-ketel
Warm water c.v.-ketel
C.V.-ketel gas gestookte combi-ketel uit 2018 van Intergas, eigendom

Oppervlakten en inhoud

Woonoppervlakte 98 m²
Perceeloppervlakte 155 m²
Inhoud 415 m³

Indeling

Aantal kamers 4
Aantal slaapkamers 3

Buitenruimte

Tuin Achtertuin met een oppervlakte van 70 m² en is gelegen op het noorden

Bergruimte

Schuur/berging vrijstaand hout

Foto's

2e Hollandiastraat 29, Bolsward
2e Hollandiastraat 29, Bolsward
2e Hollandiastraat 29, Bolsward
2e Hollandiastraat 29, Bolsward
2e Hollandiastraat 29, Bolsward
2e Hollandiastraat 29, Bolsward
2e Hollandiastraat 29, Bolsward
2e Hollandiastraat 29, Bolsward
2e Hollandiastraat 29, Bolsward
2e Hollandiastraat 29, Bolsward
2e Hollandiastraat 29, Bolsward
2e Hollandiastraat 29, Bolsward
2e Hollandiastraat 29, Bolsward
2e Hollandiastraat 29, Bolsward
2e Hollandiastraat 29, Bolsward
2e Hollandiastraat 29, Bolsward
2e Hollandiastraat 29, Bolsward
2e Hollandiastraat 29, Bolsward
2e Hollandiastraat 29, Bolsward
2e Hollandiastraat 29, Bolsward
2e Hollandiastraat 29, Bolsward
2e Hollandiastraat 29, Bolsward
2e Hollandiastraat 29, Bolsward
2e Hollandiastraat 29, Bolsward
2e Hollandiastraat 29, Bolsward
2e Hollandiastraat 29, Bolsward
2e Hollandiastraat 29, Bolsward
2e Hollandiastraat 29, Bolsward
2e Hollandiastraat 29, Bolsward
2e Hollandiastraat 29, Bolsward
2e Hollandiastraat 29, Bolsward
2e Hollandiastraat 29, Bolsward
2e Hollandiastraat 29, Bolsward
2e Hollandiastraat 29, Bolsward
2e Hollandiastraat 29, Bolsward
2e Hollandiastraat 29, Bolsward
2e Hollandiastraat 29, Bolsward

Plattegronden

Locatie

Contact opnemen

×
2e Hollandiastraat 29, Bolsward
2e Hollandiastraat 29, Bolsward
2e Hollandiastraat 29, Bolsward
2e Hollandiastraat 29, Bolsward
2e Hollandiastraat 29, Bolsward
2e Hollandiastraat 29, Bolsward
2e Hollandiastraat 29, Bolsward
2e Hollandiastraat 29, Bolsward
2e Hollandiastraat 29, Bolsward
2e Hollandiastraat 29, Bolsward
2e Hollandiastraat 29, Bolsward
2e Hollandiastraat 29, Bolsward
2e Hollandiastraat 29, Bolsward
2e Hollandiastraat 29, Bolsward
2e Hollandiastraat 29, Bolsward
2e Hollandiastraat 29, Bolsward
2e Hollandiastraat 29, Bolsward
2e Hollandiastraat 29, Bolsward
2e Hollandiastraat 29, Bolsward
2e Hollandiastraat 29, Bolsward
2e Hollandiastraat 29, Bolsward
2e Hollandiastraat 29, Bolsward
2e Hollandiastraat 29, Bolsward
2e Hollandiastraat 29, Bolsward
2e Hollandiastraat 29, Bolsward
2e Hollandiastraat 29, Bolsward
2e Hollandiastraat 29, Bolsward
2e Hollandiastraat 29, Bolsward
2e Hollandiastraat 29, Bolsward
2e Hollandiastraat 29, Bolsward
2e Hollandiastraat 29, Bolsward
2e Hollandiastraat 29, Bolsward
2e Hollandiastraat 29, Bolsward
2e Hollandiastraat 29, Bolsward
2e Hollandiastraat 29, Bolsward
2e Hollandiastraat 29, Bolsward
2e Hollandiastraat 29, Bolsward
×
2e Hollandiastraat 29, Bolsward
2e Hollandiastraat 29, Bolsward
2e Hollandiastraat 29, Bolsward